Sale Pending
























$260,000
MLS #:
3626893
Beds:
3
Baths:
3
Sq. Ft.:
1519
Lot Size:
0.12 Acres
Yr. Built:
1959
Type:
Multi-Family
Multi Family - Site Built-Resale, Duplex
Taxes/Yr.:
$893
Area:
Carlin
Community:
Carlin
Subdivision:
ZX-Other/None
Address:
701 Bush Street
Carlin, NV 89822
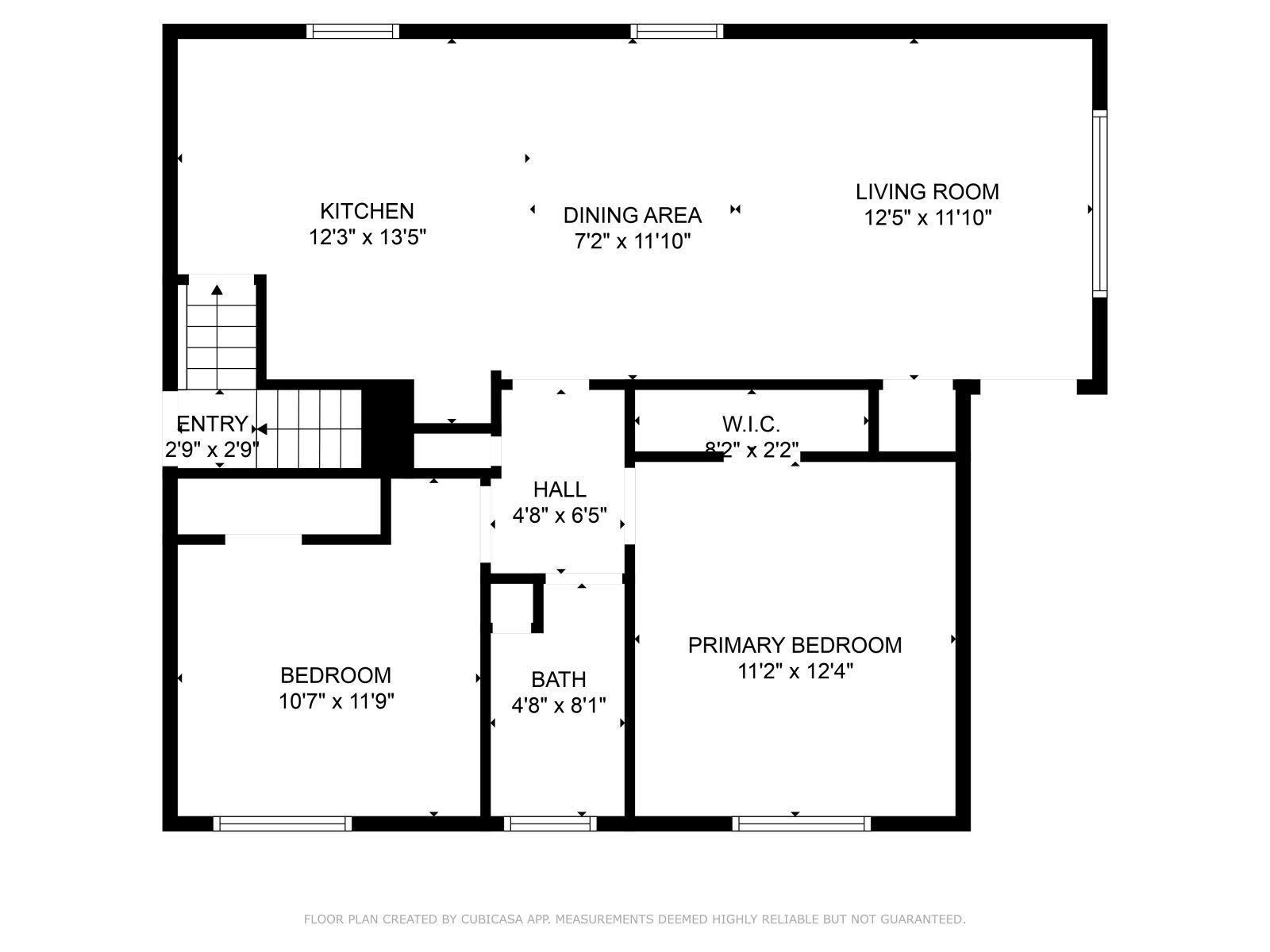
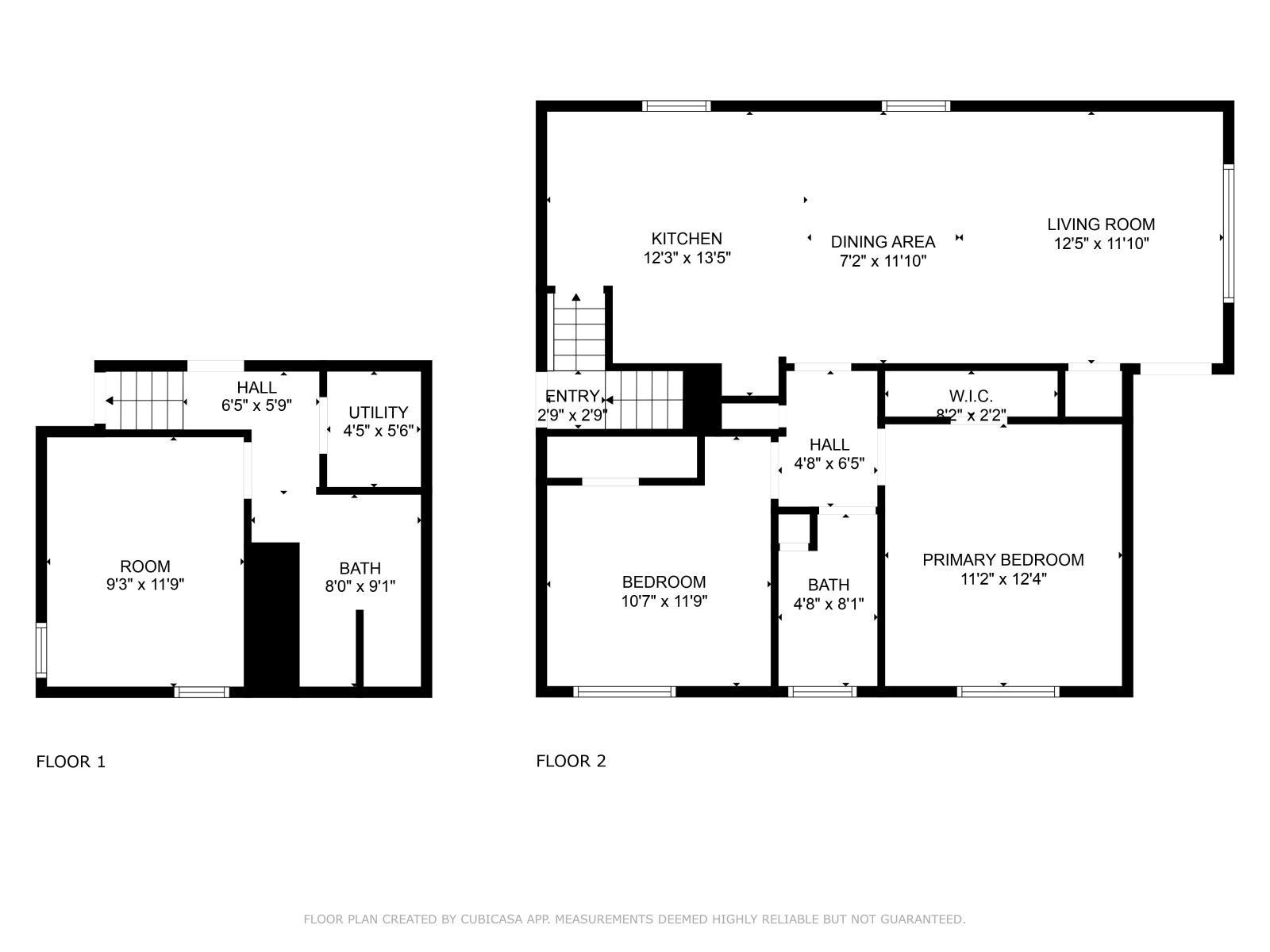
Corner Lot Duplex
Unit 1: Completely remodeled with modern finishes. The main level features 2 bedrooms, 1 bathroom, while the basement includes an office and an additional bathroom. A new furnace was installed in 2024. Unit 2: A convenient single-level layout with 1 bedroom and 1 bathroom. Currently tenant-occupied and has not been remodeled, offering steady rental income with room for future updates. Both units include a one-car garage, Roof replaced in 2023. Prime corner lot location. This property is perfect for investors seeking rental income or buyers looking for a multi-generational living setup.
Interior Features:
Ceiling Fan(s)
Cooling: None
Flooring- Laminate
Heating: Forced Air-Gas
Exterior Features:
Construction: Siding-Vinyl
Corner Lot
Lawn
Roof: Shake
Sidewalks
Trees
Appliances:
Dishwasher
Oven/Range- Nat. Gas
W/D Hookups
Water Heater- Nat. Gas
Other Features:
Duplex
Legal Access: Yes
Utilities:
Power Source: Public Utility
Water Source: Municipal
Listing offered by:
Sandra Velazquez - License# S.0191589 with Kaza Realty - (775) 934-7278.
Map of Location:
Data Source:
Listing data provided courtesy of: Elko County MLS (Data last refreshed: 10/17/25 3:54pm)
- 32
Notice & Disclaimer: Information is provided exclusively for personal, non-commercial use, and may not be used for any purpose other than to identify prospective properties consumers may be interested in renting or purchasing. All information (including measurements) is provided as a courtesy estimate only and is not guaranteed to be accurate. Information should not be relied upon without independent verification.
Notice & Disclaimer: Information is provided exclusively for personal, non-commercial use, and may not be used for any purpose other than to identify prospective properties consumers may be interested in renting or purchasing. All information (including measurements) is provided as a courtesy estimate only and is not guaranteed to be accurate. Information should not be relied upon without independent verification.
More Information

For Help Call Us!
We will be glad to help you with any of your real estate needs.(775) 777-1211
Mortgage Calculator
%
%
Down Payment: $
Mo. Payment: $
Calculations are estimated and do not include taxes and insurance. Contact your agent or mortgage lender for additional loan programs and options.
Send To Friend